REZERWACJA/Piękny domek w super lokalizacji z ogrodem/garaż
Bielany Wrocławskie gm. Kobierzyce Pokaż na mapie ›
Dodane: Piątek, 24 Październik, 2025 19:03
1 099 000 zł
8454 zł/m2
Szczegóły ogłoszenia
- Kategoria: Domy / Sprzedaż
- Powierzchnia:130 m2
- Liczba pokoi:5 i więcej pokoi
- Rynek:Pierwotny
- Rok budowy:2026
- Sprzedaż:Pośrednik
- Cena: 1 099 000 zł / 8454 zł/m2
Opis oferty
REZERWACJA OFERTYZapraszam do zakupu inwestycji w której każdy budynek jest niepowtarzalny, elewacja z elementami cegły rozbiórkowej i tynku. Domy są ekologiczne, ogrzewanie pompą ciepła, okna HST, rolety elektryczne, podłączenie klimatyzacji. Trzy różne metraże domów, oraz indywidualne warianty układów pomieszczeń,
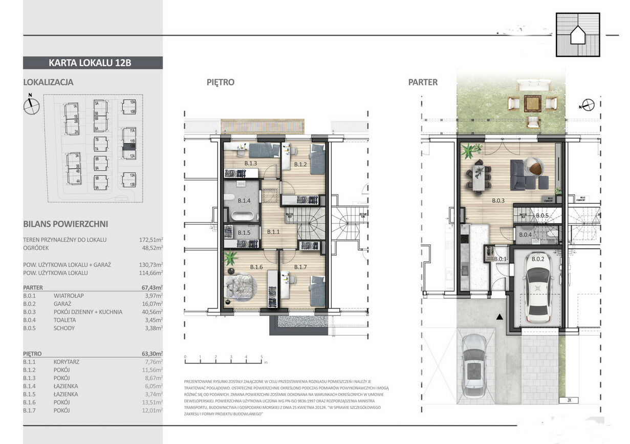
Prezentowany dom ma powierzchnię użytkową 130,73 m2, ogród ma powierzchnię 43,04m2.
PARTER:
1. Przedsionek – 3,97 m2 2.
2. Toaleta– 3,45m2
3. 3. Pokój dzienny + kuchnia – 40,56m2
4. 4. Garaż – 16,07m2
PIĘTRO:
1. Korytarz– 7,76 m2
2. Łazienka – 6,05m2
4. Pokój – 13,51m2
5. Pokój– 12,01 m2
6. Pokój – 11,56 m2
7. Pokój- 8,67m2
8. Schody – 5,04 m2
Stan deweloperski:-wykonanie instalacji elektrycznej, antenowej i internetowej w całym domu- wykonanie instalacji C.O., wodnej oraz kanalizacyjnej,- montaż pompy ciepła powietrznej, ogrzewanie podłogowe w całym budynku ,-profil okienny ideal 4000, pakiet 3 szybowe,- drzwi wejściowe, płaskie, pełne lub z tłoczeniem do antywłamaniowe klasy B,- schody wejściowe do budynku,- parapety wewnętrzne pcv kolor okien, zewnętrzne stalowe w kolorze okien,- wykonanie drogi dojazdowej oraz podjazdów z kostki brukowej, ogrodzenie terenu.
Termin realizacji inwestycji 31-06-2026
Zapraszam do kontaktu w celu przygotowania oferty / umówienia się na prezentacje – Kupujący nie płaci prowizji
Zapewniam
- profesjonalną obsługę, gwarantowaną wieloletnim doświadczeniem w branży nieruchomości-możliwość bezpłatnej rezerwacji apartamentu
- kompleksowe wsparcie na każdym etapie transakcji
- gwarancję bezpiecznego zakupu
- oszczędność czasu
-pomoc w uzyskaniu kredytu na najlepszych warunkach
- kompleksowe doradztwo
Ania Kamuda- Doradca klienta
tel. 535 - pokaż numer telefonu -
@
Nr oferty 01_PAT_12B/AK
Zamieszczone na naszych stronach informacje nie stanowią oferty w rozumieniu Kodeksu Cywilnego, a dane w nich zawarte mają jedynie charakter informacyjny.
OFERTA CENOWA AKTUALNA NA DZIEŃ 22.10.2025 I OBOWIĄZUJE DO DNIA 22.10.2025 REZERWACJA OFERTY
Sprawdź zainteresowanie tym ogłoszeniem
Wyświetlenia
Data dodania
Ostatnio widziany
Obserwujących
Wysłane zapytania
Odsłony telefonu
Powiadom o podobnych ogłoszeniach
Lokalizacja: Bielany Wrocławskie
Kategoria: Nieruchomości » Domy » Sprzedaż
Cena: od 934000 zł do 1264000 zł Powierzchnia : od 111 m2 do 150 m2
Chcę otrzymywać powiadomienia o nowych ofertach
- Wypromuj ogłoszenie
- Zgłoś naruszenie
- Drukuj ulotkę
- Edytuj/usuń ogłoszenie
- Udostępnij ogłoszenie
- Dodaj na Facebook
































